4-72、4-79系列離心風機
4-72、4-79型離心通風機用途及型號:
4-72、4-79型離心通風機用作一般通風換氣用。作為一般工廠及建筑物的室內通風換氣。既可用作輸入氣體,也可用作輸出氣體。輸送的氣體應為空氣和其他不自然的、對人體無害的、對鋼鐵材料無腐蝕性的氣體。氣體內不許有粘性物質,所含塵土及硬質顆粒物大于150mg/m。氣體溫度不得超過80℃。其中對有一定濃度的腐蝕性氣體的輸送可以用玻璃鋼為材料,生產防腐風機。
4-72、4-79型離心通風機可制成右旋轉和左旋轉兩種型式。從電動機一側正視,葉輪順時針旋轉,稱為右旋風機,以“右”表示;葉輪逆時針旋轉,稱為左旋風機,以“左”表示。風機的出口位置,以機殼的出風口角度表示。
結構特征:
4-72、4-79型離心通風機主要由葉輪、機殼、進風口等部件配直聯電機而組成;
除具有上述部分外,還有傳動部分等。
1)葉輪由12個后傾翼型葉片、曲線型前盤和平板后盤組成。均用鋼板制造,并經動、靜平衡校正,空氣性能良好,效率高、運轉平穩。
2)機殼做成二種不同型式。機殼作為整體,不能拆開。機殼制成三開式,除沿中分水平面分為二半外,上半部再沿中心線垂直分為兩半,用螺栓連接。
3)進風口制成整體,裝于風機的側面,與軸向平行的截面為曲線形狀,能使氣體川匝利進入葉輪,且損失較小。
4)傳動部分由主軸、軸承箱、滾動軸承、帶輪或聯軸器等組成。
風量過多或不足時的處理
在使用時,常常發生流量過多或不足的現象。產生這種現象的原因很多,如果在使用過程中發生這種現象,主要是由管網中的阻力時大時小,或風機在非動區工作等緣故。如果是在使用過程中,經過較長時間逐漸減少,或在短時間內突然減少,主要是管網堵塞。
詳細信息:
4-72、4-79系列離心式通風機,其效率和比A聲級均達到或優于機械工業部制定的A級標準。
4-72、4-79系列離心式通風機作一般通風換氣用,輸送空氣或其它不易燃易爆、屋腐蝕性的氣體,氣體內無粘性物質,所含的塵土及硬物質顆粒物不大于150mg/m3,溫度不超過80℃。
注:F4-72/79為防腐性離心風機,用于輸送有腐蝕性的氣體,用玻璃鋼或鋼質多遍防腐漆,不銹鋼等為材質制作。
B4-72/79為防爆型離心風機,用于輸送易燃易爆氣體,電機配用隔爆電機,防爆要求較低的采用鋼制葉輪,防爆要求較高的實用鑄鍍葉輪。
FB4-72/79為防腐防爆型離心風機,用于輸送有腐蝕性且易燃易爆的氣體。
風機分左旋和右旋兩種型式,從電機(皮帶輪)側正視,葉輪按順時針方向旋轉為右旋,逆時針旋轉為左旋。A式為電機直聯傳動
B、C、E式為皮帶傳動,D、F式為聯軸器傳動。

4-72、4-79型離心風機的風口位置示意圖

二、風機型式及傳動方式(亦適用于9-19、9-26、c6-48及其它離心風機)
| 4-72型性能參數表 | 4-79型性能參數表 | ||||||||||||||||||||||||||||||||||||||||||||||||||||||||||||||||||||||||||||||||||||||||||||||||||||||||||||||||||||||||||
|
|
| 4-72型性能參數表-續表 | 4-79型性能參數表-續表 | |||||||||||||||||||||||||||||||||||||||||||||||||||||||||||||||||||||||||||||||||||||||||||||||||||||||||||
|
|
| 4-72型性能參數表-續表 | 4-79型性能參數表-續表 | ||||||||||||||||||||||||||||||||||||||||||||||||||||||||||||||||||||||||||||||||||||||||||||||||||||||||||
|
|
|
|
| 4-72型性能參數表-續表 | 4-79型性能參數表-續表 | ||||||||||||||||||||||||||||||||||||||||||||||||||||||||||||||||||||||||||
|
|
| 4-72型性能參數表-續表 | 4-79型性能參數表-續表 | |||||||||||||||||||||||||||||||||||||||||||||||||||||||||||||||||||||||||||||||||||||||||||||||||||||||||||||||||||||||||||||||||||||||||||||||||||||||||||||
|
|
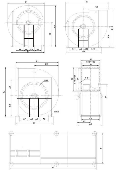
六、4-72、4-79系列風機外形尺寸
(一)、4-72、4-79系列 2.8A -6A 離心風機外形圖

(二)、4-72、4-79系列 6C -12C離心風機外形圖

(三)、4-72、4-79系列 6C -12C 離心風機外形圖

(四)、4-72系列 2.8A -6A離心風機外形尺寸表
|
機號
|
進風口尺寸
|
出風口尺寸
|
|||||||||||
|
D1
|
D2
|
D3
|
n-Φ1
|
B1
|
B2
|
B3
|
B4
|
B5
|
B6
|
n1×d1
|
n2×d2
|
n-Φ2
|
|
|
2.8A
|
Φ280
|
Φ305
|
Φ330
|
8-Φ8.5
|
202
|
234
|
262
|
228
|
258
|
288
|
3×78
|
3×96
|
12-Φ10
|
|
3.2A
|
Φ320
|
Φ350
|
Φ380
|
10-Φ9.5
|
230
|
258
|
290
|
260
|
292
|
320
|
3×86
|
4×73
|
14-Φ10
|
|
3.6A
|
Φ360
|
Φ390
|
Φ420
|
10-Φ9.5
|
258
|
300
|
338
|
292
|
332
|
372
|
4×75
|
4×86
|
16-Φ10
|
|
4A
|
Φ400
|
Φ430
|
Φ460
|
10-Φ9.5
|
286
|
324
|
366
|
324
|
364
|
404
|
4×81
|
4×91
|
16-Φ10
|
|
4.5A
|
Φ450
|
Φ480
|
Φ510
|
10-Φ9.5
|
315
|
356
|
395
|
360
|
400
|
440
|
4×89
|
5×80
|
18-Φ10
|
|
5A
|
Φ500
|
Φ540
|
Φ580
|
12-Φ9.5
|
350
|
400
|
430
|
400
|
450
|
480
|
4×100
|
5×90
|
18-Φ10
|
|
6A
|
Φ600
|
Φ640
|
Φ680
|
12-Φ8.5
|
426
|
475
|
526
|
484
|
534
|
584
|
5×95
|
6×89
|
22-Φ10
|
(五)、4-72系列 6C -12C 離心風機外形尺寸表
|
機號
|
進風口尺寸
|
出風口尺寸
|
H1
|
H2
|
H3
|
|||||||||
|
D1
|
D2
|
B1
|
B2
|
B3
|
B4
|
B5
|
B6
|
n-Φ1
|
n×b1
|
n×b2
|
||||
|
6C
|
Φ600
|
Φ640
|
426
|
475
|
526
|
484
|
534
|
584
|
22-Φ12.5
|
6×89
|
5×95
|
830
|
680
|
580
|
|
7C
|
Φ700
|
Φ740
|
498
|
550
|
598
|
566
|
618
|
666
|
22-Φ12.5
|
6×103
|
5×110
|
920
|
775
|
665
|
|
8C
|
Φ800
|
Φ840
|
560
|
610
|
660
|
640
|
690
|
740
|
22-Φ12.5
|
6×115
|
5×122
|
1040
|
880
|
760
|
|
10C
|
Φ1000
|
Φ1050
|
710
|
762
|
810
|
808
|
858
|
908
|
24-Φ12.5
|
6×143
|
6×127
|
1300
|
1100
|
950
|
|
12C
|
Φ1200
|
Φ1250
|
850
|
910
|
970
|
968
|
1032
|
1088
|
30-Φ12.5
|
8×129
|
7×130
|
1500
|
1300
|
1100
|
|
機號
|
B7
|
B8
|
A1
|
A2
|
A3
|
A4
|
E1
|
E2
|
E3
|
E4
|
E5
|
E6
|
E7
|
E8
|
M1
|
L
|
W
|
|
6C
|
850
|
1700
|
423
|
216
|
476
|
950
|
1032
|
452
|
750
|
1241
|
715
|
1206
|
600
|
1051
|
M12
|
1860
|
1080
|
|
7C
|
895
|
1790
|
613
|
253
|
512
|
1138
|
1193
|
516
|
840
|
1412
|
826
|
1439
|
1226
|
1426
|
M12
|
1950
|
1200
|
|
8C
|
1000
|
2120
|
562
|
283
|
610
|
1201
|
1578
|
570
|
960
|
1608
|
932
|
1578
|
1378
|
1612
|
M12
|
2300
|
1270
|
|
10C
|
1250
|
2500
|
702
|
358
|
780
|
1385
|
1674
|
712
|
1200
|
2012
|
1156
|
1968
|
1712
|
2006
|
M12
|
2700
|
1570
|
|
12C
|
1600
|
3200
|
842
|
428
|
920
|
1516
|
2004
|
844
|
1400
|
2372
|
1386
|
2358
|
2052
|
2386
|
M12
|
3400
|
1700
|
(六)、4-72系列14E-16E離心風機外形尺寸表
|
機 號
|
進風口尺寸
|
出 風 口 尺 寸
|
|
||||||||||
|
D
|
n-M
|
B1
|
B2
|
B3
|
B4
|
B5
|
B6
|
n-Ф1
|
n×b1
|
n×b2
|
A1
|
A2
|
|
|
14E
|
Ф1470
|
24-M12
|
996
|
1062
|
1122
|
1118
|
1180
|
1244
|
38-Ф14
|
9×118
|
10×118
|
986
|
1076
|
|
16E
|
Ф1670
|
24-M12
|
1130
|
1200
|
1250
|
1290
|
1353
|
1410
|
42-Ф14
|
10×120
|
11×123
|
1134
|
1230
|
|
機 號
|
安裝及外形尺寸圖
|
|||||||||||
|
A3
|
A4
|
A5
|
A6
|
A7
|
A8
|
A9
|
A10
|
A11
|
A12
|
B7
|
B8
|
|
|
14E
|
777
|
1404
|
270
|
270
|
550
|
550
|
280
|
280
|
560
|
560
|
1960
|
2000
|
|
16E
|
986
|
1740
|
310
|
310
|
620
|
620
|
375
|
375
|
600
|
600
|
2350
|
2400
|
|
機 號
|
安裝及外形尺寸圖
|
||||||||||||
|
E1
|
E2
|
E3
|
E4
|
E5
|
E6
|
E7
|
E8
|
E9
|
E10
|
n-Ф
|
A
|
B
|
|
|
14E
|
2428
|
1343
|
1160
|
2770
|
1645
|
2778
|
2744
|
1610
|
1380
|
2465
|
8-Ф18
|
4000
|
1670
|
|
16E
|
2670
|
1549
|
1350
|
3192
|
1850
|
3149
|
3141
|
1842
|
1560
|
2681
|
8-Ф12
|
4950
|
1980
|
(七)、4-79系列 3A -6A 離心風機外形尺寸表
|
機號
|
進風口尺寸
|
出風口尺寸
|
|||||||||||
|
D1
|
D2
|
D3
|
n-Φ1
|
B1
|
B2
|
B3
|
B4
|
B5
|
B6
|
n1×d1
|
n2×d2
|
n-Φ2
|
|
|
3A
|
Φ300
|
Φ330
|
Φ360
|
8-Φ8.5
|
216
|
246
|
276
|
244
|
276
|
304
|
3×82
|
3×92
|
12-Φ10
|
|
3.5A
|
Φ350
|
Φ380
|
Φ410
|
10-Φ8.5
|
251
|
292
|
331
|
284
|
324
|
364
|
4×73
|
4×81
|
16-Φ10
|
|
4A
|
Φ400
|
Φ430
|
Φ460
|
10-Φ8.5
|
286
|
324
|
366
|
324
|
364
|
404
|
4×81
|
4×91
|
16-Φ10
|
|
4.5A
|
450
|
480
|
510
|
10-Φ8.5
|
315
|
356
|
395
|
360
|
400
|
440
|
4×89
|
5×80
|
18-Φ10
|
|
5A
|
Φ500
|
Φ540
|
Φ580
|
12-Φ8.5
|
350
|
400
|
430
|
400
|
450
|
480
|
4×100
|
5×90
|
18-Φ10
|
|
6A
|
600
|
640
|
680
|
12-Φ8.5
|
426
|
475
|
526
|
484
|
534
|
584
|
5×95
|
6×89
|
22-Φ10
|
|
機號
|
電機型號
|
安 裝 尺 寸
|
||||||||||||
|
B7
|
B8
|
A1
|
A2
|
A3
|
A4
|
A5
|
A6
|
A7
|
A8
|
A9
|
A10
|
A11
|
||
|
3A
|
Y802-2
|
256
|
140
|
209
|
145
|
125
|
183
|
230
|
125
|
170
|
170
|
125
|
230
|
183
|
|
Y701-4
|
||||||||||||||
|
3.5A
|
Y901-2
|
291
|
160
|
249
|
173
|
140
|
217
|
217
|
140
|
200
|
200
|
140
|
217
|
217
|
|
Y801-4
|
150
|
|||||||||||||
|
4A
|
Y132S-2
|
336
|
230
|
282
|
199
|
220
|
230
|
230
|
220
|
230
|
230
|
220
|
230
|
230
|
|
Y802-4
|
150
|
130
|
130
|
130
|
||||||||||
|
4.5A
|
Y132S-2
|
365
|
240
|
319
|
225
|
230
|
240
|
280
|
230
|
290
|
290
|
230
|
280
|
240
|
|
Y90S-4
|
150
|
140
|
140
|
140
|
||||||||||
|
5A
|
Y 160M -4
|
400
|
355
|
353
|
251
|
270
|
293
|
293
|
270
|
270
|
270
|
270
|
293
|
293
|
|
Y 90L -4
|
180
|
150
|
150
|
150
|
||||||||||
|
6A
|
Y 112M -4
|
470
|
185
|
423
|
291
|
195
|
375
|
405
|
195
|
395
|
335
|
195
|
405
|
375
|
|
Y 100L -6
|
178
|
155
|
155
|
245
|
||||||||||
|
機號
|
電機型號
|
安 裝 尺 寸
|
|||||||||||
|
E1
|
E2
|
E3
|
E4
|
E5
|
E6
|
E7
|
E8
|
E9
|
E10
|
L
|
n-Φ
|
||
|
3A
|
Y802-2
|
527
|
294
|
380
|
628
|
611
|
249
|
310
|
544
|
260
|
623
|
498
|
6-Φ10.5
|
|
Y701-4
|
|||||||||||||
|
3.5A
|
Y901-2
|
612
|
344
|
450
|
741
|
721
|
291
|
345
|
638
|
300
|
731
|
583
|
6-Φ12.5
|
|
Y801-4
|
558
|
||||||||||||
|
4A
|
Y132S-2
|
700
|
390
|
480
|
810
|
814
|
330
|
420
|
730
|
350
|
834
|
763
|
6-Φ12.5
|
|
Y802-4
|
602
|
||||||||||||
|
4.5A
|
Y132S-2
|
778
|
437
|
560
|
929
|
908
|
369
|
460
|
801
|
390
|
929
|
799
|
6-Φ12.5
|
|
Y90S-4
|
642
|
||||||||||||
|
5A
|
Y 160M -4
|
857
|
484
|
610
|
1019
|
1001
|
409
|
500
|
874
|
415
|
1008
|
953
|
6-Φ14.5
|
|
Y 90L -4
|
746
|
||||||||||||
|
6A
|
Y 112M -4
|
1032
|
581
|
750
|
1241
|
1206
|
491
|
600
|
1051
|
500
|
1215
|
844
|
6-Φ14.5
|
|
Y 100L -6
|
824
|
||||||||||||
(八)、4-79系列 7C -12C離心風機外形尺寸表
|
機號
|
進風口尺寸
|
出風口尺寸
|
H1
|
H2
|
H3
|
|||||||||
|
D1
|
D2
|
B1
|
B2
|
B3
|
B4
|
B5
|
B6
|
n-Φ2
|
n1×d1
|
n2×d2
|
||||
|
7C
|
Φ700
|
Φ740
|
498
|
550
|
598
|
566
|
618
|
666
|
22-Φ12.5
|
6×103
|
5×110
|
940
|
810
|
700
|
|
8C
|
Φ800
|
Φ840
|
560
|
610
|
660
|
640
|
690
|
740
|
22-Φ12.5
|
5×122
|
6×115
|
1040
|
880
|
760
|
|
10C
|
Φ1000
|
Φ1050
|
710
|
, 762
|
810
|
808
|
858
|
908
|
24-Φ12.5
|
6×127
|
6×143
|
1300
|
1100
|
950
|
|
12C
|
Φ1200
|
Φ1250
|
850
|
910
|
970
|
968
|
1032
|
1088
|
30-Φ12.5
|
7×130
|
8×129
|
1500
|
1300
|
1100
|
|
機號
|
B7
|
B8
|
A1
|
A2
|
A3
|
A4
|
E1
|
E2
|
E3
|
E4
|
E5
|
E6
|
E7
|
E8
|
M1
|
L
|
W
|
|
7C
|
991
|
1058
|
493
|
296
|
548
|
114
|
1193
|
677
|
840
|
1412
|
1439
|
826
|
710
|
1266
|
M12
|
2500
|
1120
|
|
8C
|
1060
|
2120
|
562
|
332
|
610
|
125
|
1578
|
168
|
960
|
1608
|
1578
|
932
|
800
|
1378
|
M12
|
2600
|
1200
|
|
10C
|
1250
|
2500
|
702
|
405
|
780
|
160
|
1674
|
962
|
1200
|
2012
|
1968
|
1156
|
1000
|
1712
|
M12
|
3000
|
1500
|
|
12C
|
1600
|
3200
|
842
|
475
|
920
|
200
|
2004
|
1152
|
1400
|
2372
|
2358
|
1386
|
1200
|
2052
|
M12
|
3200
|
1600
|
(九)、4-79系列14E-16E離心風機外形尺寸表
|
機 號
|
進風口尺寸
|
出 風 口 尺 寸
|
|
||||||||||
|
D
|
n-M
|
B1
|
B2
|
B3
|
B4
|
B5
|
B6
|
n-Ф1
|
n×b1
|
n×b2
|
A1
|
A2
|
|
|
14E
|
Ф1470
|
24-M12
|
996
|
1062
|
1122
|
1118
|
1180
|
1244
|
38-Ф14
|
9×118
|
10×118
|
986
|
1076
|
|
16E
|
Ф1670
|
24-M12
|
1130
|
1200
|
1250
|
1290
|
1353
|
1410
|
42-Ф14
|
10×120
|
11×123
|
1134
|
1230
|
|
機 號
|
安裝及外形尺寸圖
|
|||||||||||
|
A3
|
A4
|
A5
|
A6
|
A7
|
A8
|
A9
|
A10
|
A11
|
A12
|
B7
|
B8
|
|
|
14E
|
777
|
1404
|
270
|
270
|
550
|
550
|
280
|
280
|
560
|
560
|
1960
|
2000
|
|
16E
|
986
|
1740
|
310
|
310
|
620
|
620
|
375
|
375
|
600
|
600
|
2350
|
2400
|
|
機 號
|
安裝及外形尺寸圖
|
||||||||||||
|
E1
|
E2
|
E3
|
E4
|
E5
|
E6
|
E7
|
E8
|
E9
|
E10
|
n-Ф
|
A
|
B
|
|
|
14E
|
2428
|
1343
|
1160
|
2770
|
1645
|
2778
|
2744
|
1610
|
1380
|
2465
|
8-Ф18
|
4000
|
1670
|
|
16E
|
2670
|
1549
|
1350
|
3192
|
1850
|
3149
|
3141
|
1842
|
1560
|
2681
|
8-Ф12
|
4950
|
1980
|
非特殊說明,本文為本站原創(翻譯)文章,轉載請注明:本文轉自:江西鑫佳通科技股份有限公司。
本文連接:http://m.szlyedu.com/product/3136214226.html
想了解更多請點擊===>>離心通風機 離心風機
4-72、4-79系列離心風機產品知識推薦
- 軸流風機與離心風機區別是什么?主要用途有那些? 2018-06-27
- 離心式風機的使用場合范圍 2017-08-26
- 離心風機的調試方法 2017-06-02
- 怎么做好柜式離心風機箱安裝工作? 2017-06-13
- 如何選擇離心風機設計方案? 2017-06-20
- 前傾與后傾離心風機的選配與應用 2017-10-16
- 消防排煙風機有何分類和特點呢? 2020-05-07
- 高壓離心風機在農業有什么作用? 2017-06-24
- 離心式風機安裝前的準備 2017-07-05
- 玻璃鋼離心風機工作原理 2017-10-23
- 消防排煙柜式離心風機的技術要求 2017-07-25
- 離心通風機型號參數上各數值包含意義是什么?離心通風機介紹 2018-03-10
- 離心風機的效率、轉速及噪聲 2017-09-23
- 低噪聲柜式離心風機轉速不穩定原理分析 2018-01-08
- 工廠用離心通風機風量如何合理調節? 2017-11-23
- 離心式風機的使用和安裝 2017-11-09
- 離心式風機維修有哪些誤區? 2017-08-18
- 柜式離心排煙風機有什么特點呢? 2020-05-05
- 排煙離心風機的選擇要點分析 2017-07-03
- 柜式離心風機消防排煙風機特點體現在哪幾方面 2017-03-28












相關評論: